Шкив зубчатый под расточку 24 H 150, EMT
2 526 руб./шт
Уточните наличие и цену
Нашли дешевле?
Запрос цены
Наши менеджеры обязательно свяжутся с вами и уточнят условия заказа
Цена действительна при наличии товара на складе.
Минимальная сумма заказа - 1000 рублей.
Ответим на все интересующие вопросы и подберём оптимальный вариант info@euromehanika.ru
Описание
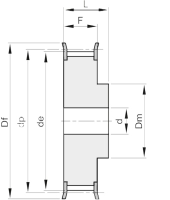
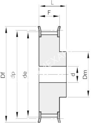
Шкив зубчатый под расточку, для ремней с профилем зуба H 0,5'' (12,7mm) и шириной ремня 150 (38,1mm) с числом зубьев шкива Z= 24. Применяются в приводах для передачи крутящего момента. Материал шкива St. Вес детали 2,75 кг. Торговая марка EMT.Характеристики
|
Тип
|
2F |
|
Профиль зуба
|
H 0,5'' (12,7mm) |
|
Ширина ремня
|
150 (38,1mm) |
|
Число зубьев,шт
|
24 |
|
Посадка на вал
|
Под расточку |
|
Наружный диаметр, de, мм
|
95,65 |
|
Диаметр ступицы, dm, мм
|
72 |
|
Расчетный диаметр dp, мм
|
97,03 |
|
Наружный диаметр по фланцам Df
|
103 |
|
Ширина F, мм
|
46,0 |
|
Ширина шкива L, мм
|
58 |
|
Диаметр чернового отверстия d, мм
|
18 |
|
Материал
|
St |
|
Производитель
|
EMT |
|
Вес, кг
|
2,75 |
Наличие
Новости
Все новости
6 апреля 2026
Нашли дешевле? Мы предложим максимально выгодную цену!
12 марта 2026
«Евромеханика» получила благодарственное письмо
6 марта 2026
Поздравляем с 8 Марта!






























