Шкив зубчатый под расточку 25 H 200, EMT
3 265 руб./шт
Уточните наличие и цену
Нашли дешевле?
Запрос цены
Наши менеджеры обязательно свяжутся с вами и уточнят условия заказа
Цена действительна при наличии товара на складе.
Минимальная сумма заказа - 1000 рублей.
Ответим на все интересующие вопросы и подберём оптимальный вариант info@euromehanika.ru
Описание
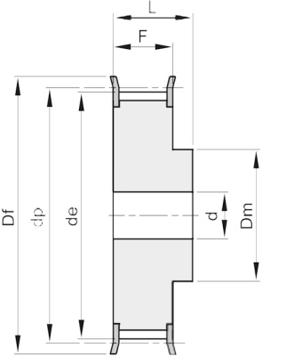
Шкив зубчатый под расточку, для ремней с профилем зуба H 0,5'' (12,7mm) и шириной ремня 200 (50,8mm) с числом зубьев шкива Z= 25. Применяются в приводах для передачи крутящего момента. Материал шкива St. Вес детали 3,81 кг. Торговая марка EMT.Характеристики
|
Тип
|
2F |
|
Профиль зуба
|
H 0,5'' (12,7mm) |
|
Ширина ремня
|
200 (50,8mm) |
|
Число зубьев,шт
|
25 |
|
Посадка на вал
|
Под расточку |
|
Наружный диаметр, de, мм
|
99,69 |
|
Диаметр ступицы, dm, мм
|
72 |
|
Расчетный диаметр dp, мм
|
101,06 |
|
Наружный диаметр по фланцам Df
|
106 |
|
Ширина F, мм
|
58,7 |
|
Ширина шкива L, мм
|
70 |
|
Диаметр чернового отверстия d, мм
|
18 |
|
Материал
|
St |
|
Производитель
|
EMT |
|
Вес, кг
|
3,81 |
Наличие
Новости
Все новости
6 апреля 2026
Нашли дешевле? Мы предложим максимально выгодную цену!
12 марта 2026
«Евромеханика» получила благодарственное письмо
6 марта 2026
Поздравляем с 8 Марта!






























